Service sur-mesure : Conseil & Expertise de la conception à la maintenance

ETUDE
Sur mesure

INSTALLATION
Personnalisée

MAINTENANCE
Rapide
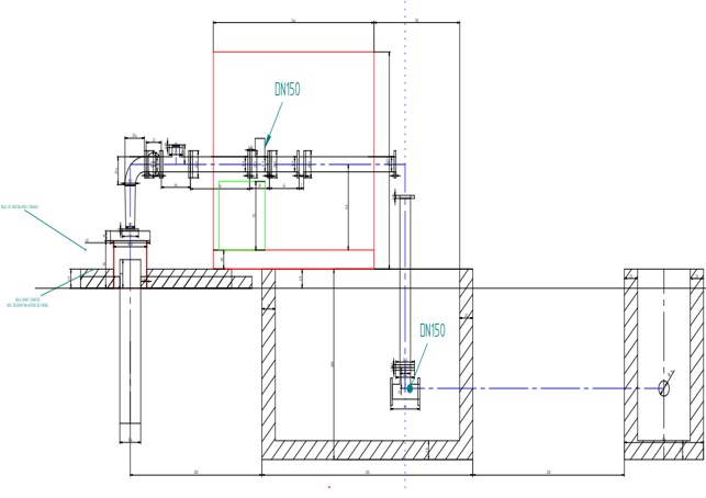
Etude en 6 points :
- Neuve ou rénovation
- Audit de vos installations hydraulique & électrique
- Etudes et dimensionnement de vos besoins
- Calculs hydraulique et électrique
- Conception
- Présentation du projet
Installation en 5 points :
- Equipes de spécialistes multi-compétences
- Outils modernes et adaptés aux différents travaux
- Conception armoire électrique et chaudronnerie en interne
- Stock de pièces hydraulique & électrique hors norme
- Technologie de dernière génération : variation de vitesse et télégestion
Maintenance en 4 points :
- Equipes formées au dépannage
- 9 camions atelier
- 2 camions poids lourds avec grue
- Réactivité sans comparaison
